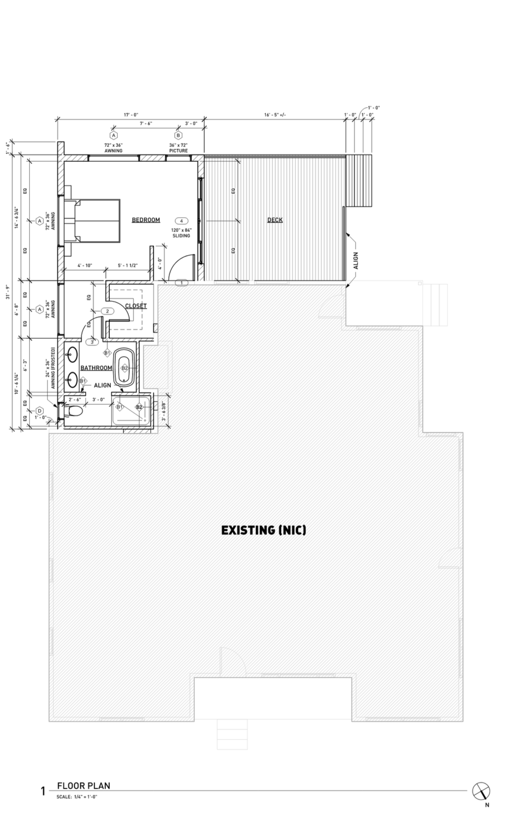
Adding Space for Intergenerational Living

Lantos Residence Addition

Single-Family Residential Addition
Tulsa, OK | 2023 - 2024

With an elderly family member coming to permanently live with them soon, this client requested an addition to their home that provided its new resident privacy and independence balanced with easy access to the main areas of the existing house.

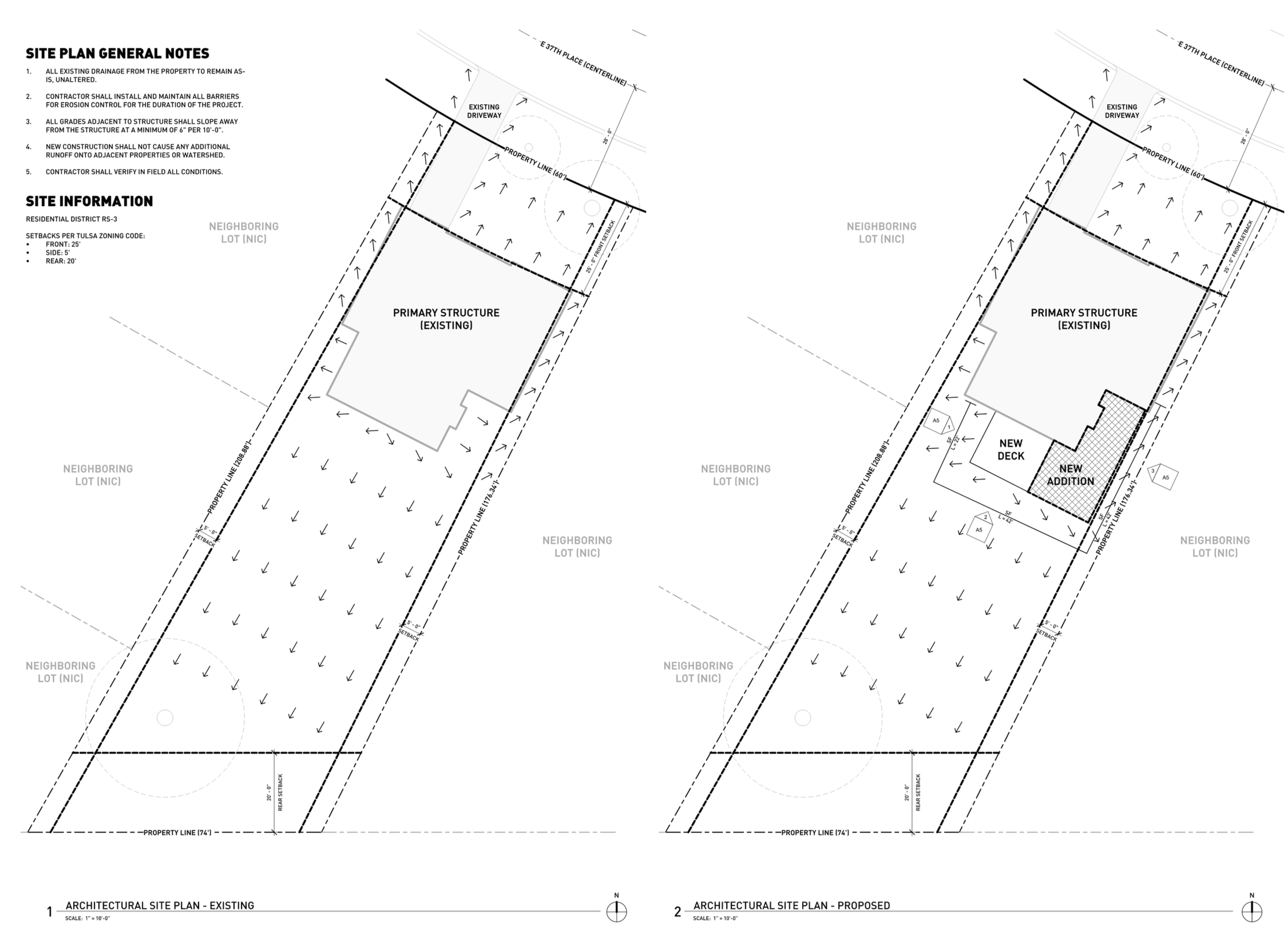
With very tight site constraints on a small lot, this addition aimed to provide new living spaces that give the sense of being far more spacious and isolated than they actually are.

Large windows frame views to the backyard trees and plantings, while also letting in large amounts of natural light and fresh air. Simple white paint helps sunlight spread deeper into the addition, while the warm natural tones of the wood-look flooring provides comfort and serenity. Highly insulated exterior walls pair with a mini split HVAC system to provide thermal comfort year-round with minimal noise or vibration.

The exterior materials and massing aimed to balance modern design and detailing while still feeling coherent and connected with the existing brick.

Previous
Previous

Bertani Residence

Next
Next

2730 Admiral