Four New Rentals That Stand Apart

Ellison Quads

New Single-Family Rental Development
Tulsa, OK | 2024 - 2025

Development & Construction Partner: EIG Builders

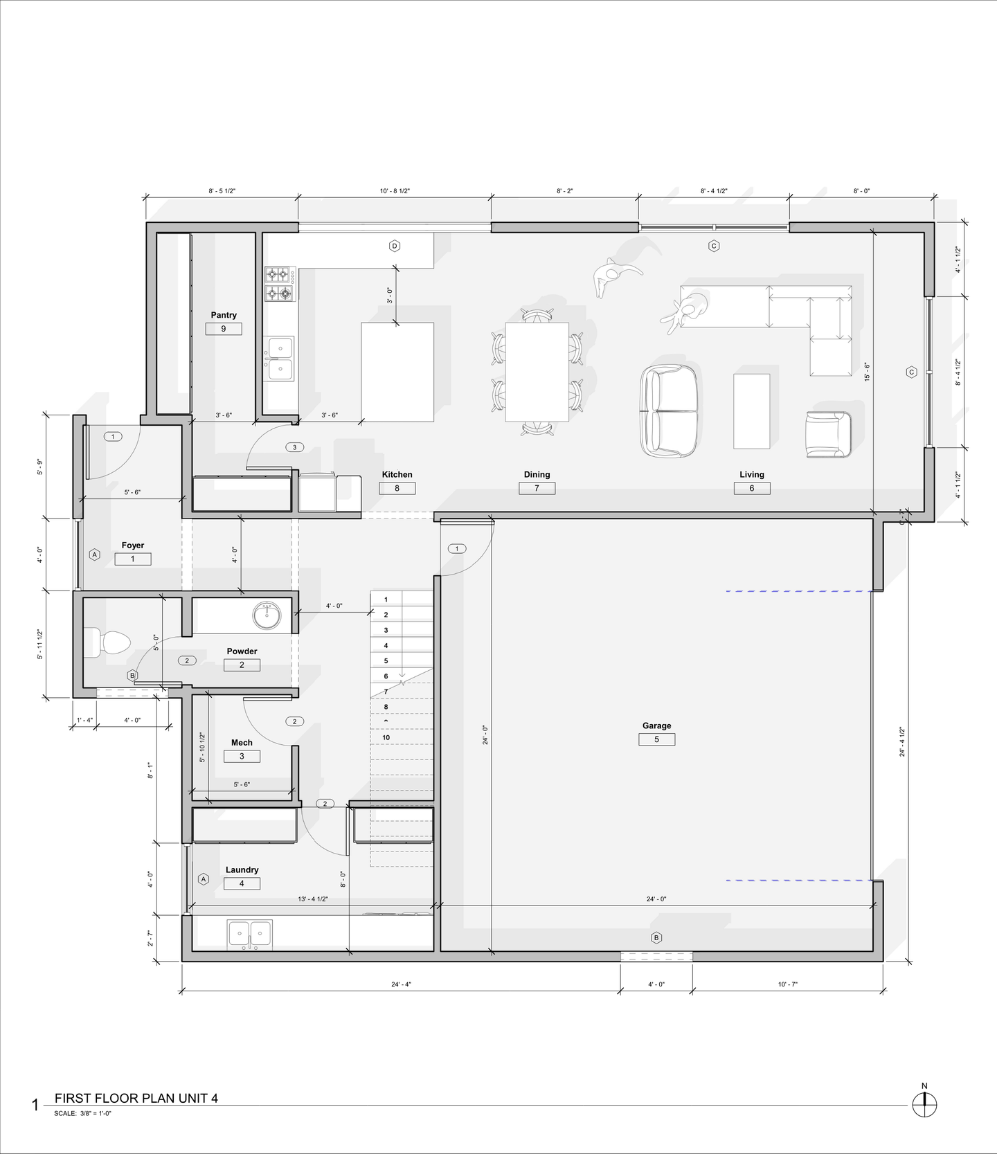
Designed and constructed in tandem, the four rental properties that comprise the Quads each provide different functions, amenities, and layouts to accommodate residents. The exterior design of each varies enough from the others to not appear as a homogenous set while still pulling from the same design language.

While three of the buildings are wholly dedicated to their residents, the fourth includes a large garage space for the management’s vehicle storage needs, which led to a taller main story and higher second story.

Construction photos of three complete structures shown, with example drawings from the fourth structure included below. Additional photos and information coming soon.

Previous
Previous

Ellison Townhomes

Next
Next

Lantos Addition